Floor Plan

Weston Village Hall Floor Plan
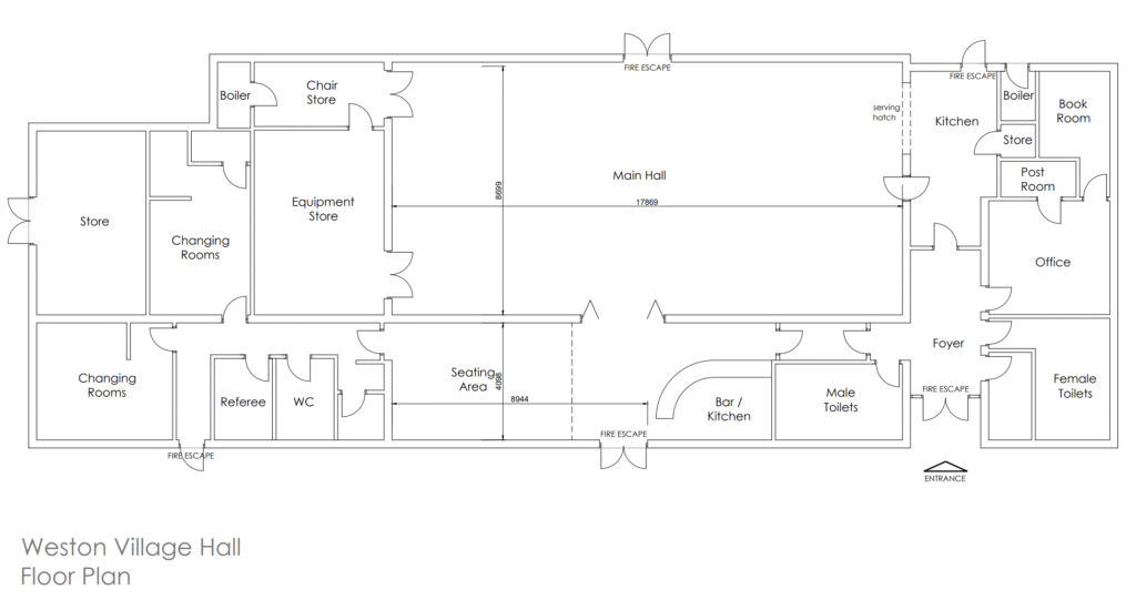
To help you plan your event or activity, this page provides a detailed floor plan of Weston Village Hall. Whether you’re arranging seating for a celebration, setting up equipment for a class, or checking access points, the layout will give you a clear understanding of the space available. Dimensions, key features, and facilities are marked to support smooth planning and setup.
